Blower or Relay problem???
check IP hvac fuse{s}, both sides should be 12 v in run position.
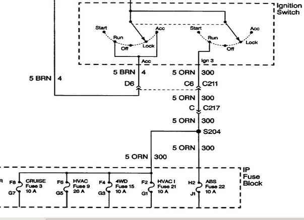
-this is from my 99 diagrams. should be close but I suspect IP fuse or or block connection, not ign sw.
-this is from my 99 diagrams. should be close but I suspect IP fuse or or block connection, not ign sw.
Last edited by pettyfog; Sep 24, 2011 at 07:58 PM.
ok, the #9 HVAC fuse keeps blowing but I did replace the heater switch and I got the 1-3 speeds. I don't have the high speed. I tried a blower motor resistor and that didn't do it. I work at auto zone so I can preview the parts before I purchase fortunately. Besides it blowing it works, just dont have high speed and when I turn the selector it doesnt switch from vent to floor or anything. any ideas? sorry if this was resolved im writing back on my phone.
Re: the fuse..
Go under the hood and pull the connector on your AC hi press cutout switch. You're looking for two wires on the AC plumbing... probably lt blue and dk green with white stripe.
If the accumulator plug has 4 wires going into it.. may be that one.
Adn btw.. when does the fuse blow? When you put it on hi? Obviously you dont have blower at all when it's broken.
Go under the hood and pull the connector on your AC hi press cutout switch. You're looking for two wires on the AC plumbing... probably lt blue and dk green with white stripe.
If the accumulator plug has 4 wires going into it.. may be that one.
Adn btw.. when does the fuse blow? When you put it on hi? Obviously you dont have blower at all when it's broken.
Last edited by pettyfog; Sep 27, 2011 at 09:19 AM.
an update to this posting, i put in a new switch, and i have speeds 1-3 and i tried putting on a new relay, and it doesnt give me the 4 speed. i also noticed that the control selector, like deforst, floor, and all that doesnt work, the air only comes from the vents, any ideas?
Hello all, this is an update from the previous post. I ended up putting in a new switch and I had speeds 1-3 but 4 didn't work and the selector switch didn't work and by selector I mean the one that selects the ground, vents, both, etc. I dealt with it even though it would only work on number 3 and the vents. Well I startedit before work today so it would warm up and it was working like before, 10 minutes later, I go to get in and it's not blowing anything. Fuses are all good. I don't know what to do
I suggest you try the basics first. The motor must have power & ground to work. Check to see if the ground wire at the motor has continuity to chassis ground. Also check to see what voltage you have coming to the motor. Also you can hot wire the motor to be sure it is working.
Thread
Thread Starter
Forum
Replies
Last Post
ojibwe_guy
2nd Generation S-series (1995-2005) Tech
3
Jun 26, 2012 01:49 PM
EnyChevyUK
Full Size K5 (1969-1991) GMT415 (1992-1994) Tech
12
Aug 25, 2009 07:24 PM
bestes
1st Generation S-series (1983-1994) Tech
2
May 31, 2008 03:16 PM
blazer_girl
2nd Generation S-series (1995-2005) Tech
7
Jul 21, 2007 07:08 PM






